Таунхаус с прекрасным видом на море
Обновлено: январь 2026
Если вы нашли неточность, помогите нам стать лучше — расскажите нам об этом
- Микрорайон
- Хоста
- Улица
- Ручей видный
- До моря
- 1 000 м
- Этажность
- 2
- Общая площадь
- 270 м²
- Площадь участка
- 2 сот.
- Цена
- 44 900 000
- Использование
- ИЖС
- Вид права
- Собственность
- Вид из окон
- Панорамный на море
- Ремонт
- Дизайнерский
- Мебель
- Есть мебель
Андрей Царев
Руководитель отдела продаж
- Этажность
- 2
- Общая площадь
- 270 м²
- Площадь участка
- 2 сот.
- Цена
- 44 900 000
- Использование
- ИЖС
- Вид права
- Собственность
- Микрорайон
- Хоста
- Улица
- Ручей видный
- До моря
- 1 000 м
- Вид из окон
- Панорамный на море
- Ремонт
- Дизайнерский
- Мебель
- Есть мебель
В современном мире, где все больше людей стремятся к комфорту, уюту и благополучию, покупка недвижимости становится одним из главных приоритетов. Таунхаусы в Сочи являются прекрасным выбором для тех, кто хочет приобрести жилье у моря с рядом преимуществ. Если вы как раз находитесь в поиске лучшего варианта, то в обязательном порядке обратите внимание на наше новое предложение, о котором мы в подробностях расскажем ниже.
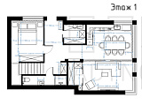
Сразу отметим, что сочетание достаточно большой квадратуры с продуманной планировкой делают данный таунхаус отличным вариантом для жизни и отдыха семей, которым важна свобода и приватность личного пространства. Все спальные комнаты в нем изолированы, а кухня совмещена с гостиной зоной, что позволяет собираться вместе даже большой компанией! Высокие потолки (3-3,5 метра) и панорамное остекление – это отдельный плюс, благодаря которому пространство становится еще более свободным.
Важный аспект – это полная готовность для жизни. В таунхаусе сделан новый ремонт, который не требует дополнительных вложений. Оформление пространства продумано в деталях. В частности отметим, что авторы проекта уделили большое внимание подбору мебели и декоративных элементов. Впрочем, вы можете отправиться вместе с нашими экспертами на персональный показ и лично оценить все его достоинства!
На эксплуатируемой кровле расположилась зона для отдыха с джакузи. Вид отсюда открывается просто фантастический! Впрочем, это еще один повод побывать здесь лично.
Таунхаус входит в состав поселка закрытого типа. Установлены камеры видеонаблюдения, оборудованы зоны для барбекю. Для каждого таунхауса предусмотрен персональный гараж.
Еще более детальная информация всегда доступна у экспертов нашего агентства по указанным выше номерам. Звоните в любое время, мы ответим на все вопросы и организуем для вас персональный показ в любое время.
Сразу отметим, что сочетание достаточно большой квадратуры с продуманной планировкой делают данный таунхаус отличным вариантом для жизни и отдыха семей, которым важна свобода и приватность личного пространства. Все спальные комнаты в нем изолированы, а кухня совмещена с гостиной зоной, что позволяет собираться вместе даже большой компанией! Высокие потолки (3-3,5 метра) и панорамное остекление – это отдельный плюс, благодаря которому пространство становится еще более свободным.
Важный аспект – это полная готовность для жизни. В таунхаусе сделан новый ремонт, который не требует дополнительных вложений. Оформление пространства продумано в деталях. В частности отметим, что авторы проекта уделили большое внимание подбору мебели и декоративных элементов. Впрочем, вы можете отправиться вместе с нашими экспертами на персональный показ и лично оценить все его достоинства!
На эксплуатируемой кровле расположилась зона для отдыха с джакузи. Вид отсюда открывается просто фантастический! Впрочем, это еще один повод побывать здесь лично.
Таунхаус входит в состав поселка закрытого типа. Установлены камеры видеонаблюдения, оборудованы зоны для барбекю. Для каждого таунхауса предусмотрен персональный гараж.
Еще более детальная информация всегда доступна у экспертов нашего агентства по указанным выше номерам. Звоните в любое время, мы ответим на все вопросы и организуем для вас персональный показ в любое время.
32024
36 000 000 ₽
Таунхаус находится в Хостинском районе,
который отличается благоприятной экологией и прекрасной транспортной доступностью. Подробнее
- Площадь
- 350 м² / 3 сот.
- До моря
- 1 км
- Этажность
- 3
16252
37 000 000 ₽
Комплекс таунхаусов Мандарин Парк, который
расположен в Адлерском микрорайоне города курорта Сочи, в Курортном городке. Это местоположение имеет ряд... Подробнее
- Площадь
- 106 м² / 6 сот.
- До моря
- 150 м
- Этажность
- 3
21138
- Лучшая цена
37 000 000 ₽
Трехэтажный таунхаус с качественным евроремонтом
и мебелью. Территория поселка является охраняемой и облагороженной, есть парковочные места. Подробнее
- Площадь
- 105 м² / 2 сот.
- До моря
- 42 км
- Этажность
- 3
22351
38 000 000 ₽
Стильные апартаменты с качественным ремонтом
и мебелью. Море на расстоянии 800 метров. Развитая инфраструктура, рядом все необходимое. Подробнее
- Площадь
- 140 м² / 1 сот.
- До моря
- 800 м
- Этажность
- 4
16353
- Лучшая цена
39 000 000 ₽
В микрорайоне Сочи Хоста предлагается
эксклюзивный таунхаус с ремонтом и мебелью. Развитая инфраструктура, замечательный вид на море. Подробнее
- Площадь
- 300 м² / 6 сот.
- До моря
- 1 км
- Этажность
- 3
44364
- Лучшая цена
39 000 000 ₽
В продажу представлен просторный таунхаус
в живописном Адлерском районе! Предлагаем ощутить все достоинства данного предложения в живую. Дом в два э... Подробнее
- Площадь
- 122 м² / 4 сот.
- До моря
- 1 км
- Этажность
- 2
49055
39 000 000 ₽
Предлагается к продаже трехэтажный таунхаус
расположенный в КП с закрытой территорией и собственным зеленым парком. Таунхаус с новым ремонтом, полно... Подробнее
- Площадь
- 140 м² / 2 сот.
- До моря
- 2 км
- Этажность
- 3
12315
40 000 000 ₽
Вы всегда мечтали о собственном таунхаусе
на берегу лазурного моря? ООО «Винсент Недвижимость» поможет Вам осуществить Вашу мечту! Мы рады представи... Подробнее
- Площадь
- 230 м² / 3 сот.
- До моря
- 1,1 км
- Этажность
- 3
49854
40 000 000 ₽
Этот коттедж — идеальный вариант для тех,
кто ищет комфортабельное и безопасное жильё с высоким уровнем жизни. Не упустите возможность стать владель... Подробнее
- Площадь
- 130 м² / 4 сот.
- До моря
- 400 м
- Этажность
- 3
39170
- Хит продаж
41 500 000 ₽
Вышел в продажу новый таунхаус в коттеджном
посёлке Изумрудный город. Огороженная территория, паркинг, детские и спортивные площадки, бассейн, ресто... Подробнее
- Площадь
- 140 м² / 2 сот.
- До моря
- 700 м
- Этажность
- 3
Таунхаус с прекрасным видом на море: варианты приобретения
-
- Резидент РФ
- Купля
- по долям
- Дом
- Ипотека
Купить дом по долям в ипотеку
-
Документы по требованию Банка (исходя из условий кредитной линии)
-
Нотариальные согласия супругов покупателей на покупку и залог недвижимого имущества в пользу Банка
-
Паспорта обоих покупателей
-
- Резидент РФ
- Купля
- по долям
- Дом
- Наличный расчет
Купить дом по долям
-
Паспорта обоих покупателей
-
- Резидент РФ
- Купля
- Дом
- Ипотека
Купить дом в ипотеку
-
Документы по требованию Банка (исходя из условий кредитной линии)
-
Нотариальное согласие супруга на покупку и залог недвижимого имущества в пользу Банка
-
Паспорт
-
- Резидент РФ
- Купля
- Дом
- Наличный расчет
Купить дом
-
Паспорт
-
- Иностранец
- Купля
- Дом
- Наличный расчет
Купить дом не резиденту РФ
Покупка дома возможна, если участок находится в аренде-
Паспорт национальный и нотариально заверенный перевод национального паспорта
-
- Иностранец
- Купля
- по долям
- Дом
- Наличный расчет
Купить дом по долям не резиденту РФ
-
Паспорт национальный и нотариально заверенный перевод национального паспорта от каждого покупателя