Таунхаус в Изумрудном Городе
Обновлено: январь 2026
Если вы нашли неточность, помогите нам стать лучше — расскажите нам об этом
- Микрорайон
- Адлер
- Улица
- Изумрудная
- До моря
- 700 м
- Этажность
- 3
- Общая площадь
- 140 м²
- Площадь участка
- 2 сот.
- Цена
- 41 500 000
- Использование
- ИЖС
- Вид права
- Собственность
- Вид из окон
- Частичный на море
- Ремонт
- Дизайнерский
- Мебель
- Без мебели
Ксения Бодрова
Эксперт по недвижимости
- Этажность
- 3
- Общая площадь
- 140 м²
- Площадь участка
- 2 сот.
- Цена
- 41 500 000
- Использование
- ИЖС
- Вид права
- Собственность
- Микрорайон
- Адлер
- Улица
- Изумрудная
- До моря
- 700 м
- Вид из окон
- Частичный на море
- Ремонт
- Дизайнерский
- Мебель
- Без мебели
Вышел в продажу новый таунхаус в коттеджном посёлке Изумрудный город. Огороженная территория, паркинг, детские и спортивные площадки, бассейн, ресторан и великолепное расположение посёлка от аэропорта и Красной поляны делает это предложение особенно выгодным для тех, кто в поиске готового объекта недвижимости.
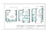
Таунхаус 140 кв.м., состоит из трёх этажей. Входная группа находится на втором этаже. Наверху родительская или мастер спальня с санузлом, но втором этаже две отдельные спальни и санузел, на первом этаже просторная кухня с гостиной с санузлом. В каждой комнате балкон с видом на море и на первом этаже терраса с выходом на свой уютный двор.
Здесь совсем недавно закончился ремонт, полностью укомплектованы санузлы и кухонный гарнитур со встроенной техникой.
Осталось на свой вкус приобрести мебель, текстиль и декор.
Таунхаус готов к продаже, подготовлен комплект документов. Просмотр возможен в удобное для Вас время, даже онлайн при необходимости.
Таунхаус 140 кв.м., состоит из трёх этажей. Входная группа находится на втором этаже. Наверху родительская или мастер спальня с санузлом, но втором этаже две отдельные спальни и санузел, на первом этаже просторная кухня с гостиной с санузлом. В каждой комнате балкон с видом на море и на первом этаже терраса с выходом на свой уютный двор.
Здесь совсем недавно закончился ремонт, полностью укомплектованы санузлы и кухонный гарнитур со встроенной техникой.
Осталось на свой вкус приобрести мебель, текстиль и декор.
Таунхаус готов к продаже, подготовлен комплект документов. Просмотр возможен в удобное для Вас время, даже онлайн при необходимости.
49183
34 000 000 ₽
Предлагается к продаже таунхаус 120кв.м.
с новым ремонтом. На первом этаже расположилась кухня гостиная, прихожая и санузел. На втором этаже хозяйск... Подробнее
- Площадь
- 110 м² / 120 сот.
- До моря
- 2 км
- Этажность
- 3
48959
35 000 000 ₽
Уникальный закрытый поселок, расположенный
в самом сердце Сириуса! Здесь вы найдете уютные двухэтажные таунхаусы, площадью 90 квадратных метров, иде... Подробнее
- Площадь
- 90 м² / 2 сот.
- До моря
- 200 м
- Этажность
- 2
32024
36 000 000 ₽
Таунхаус находится в Хостинском районе,
который отличается благоприятной экологией и прекрасной транспортной доступностью. Подробнее
- Площадь
- 350 м² / 3 сот.
- До моря
- 1 км
- Этажность
- 3
16252
37 000 000 ₽
Комплекс таунхаусов Мандарин Парк, который
расположен в Адлерском микрорайоне города курорта Сочи, в Курортном городке. Это местоположение имеет ряд... Подробнее
- Площадь
- 106 м² / 6 сот.
- До моря
- 150 м
- Этажность
- 3
21138
- Лучшая цена
37 000 000 ₽
Трехэтажный таунхаус с качественным евроремонтом
и мебелью. Территория поселка является охраняемой и облагороженной, есть парковочные места. Подробнее
- Площадь
- 105 м² / 2 сот.
- До моря
- 42 км
- Этажность
- 3
22351
38 000 000 ₽
Стильные апартаменты с качественным ремонтом
и мебелью. Море на расстоянии 800 метров. Развитая инфраструктура, рядом все необходимое. Подробнее
- Площадь
- 140 м² / 1 сот.
- До моря
- 800 м
- Этажность
- 4
16353
- Лучшая цена
39 000 000 ₽
В микрорайоне Сочи Хоста предлагается
эксклюзивный таунхаус с ремонтом и мебелью. Развитая инфраструктура, замечательный вид на море. Подробнее
- Площадь
- 300 м² / 6 сот.
- До моря
- 1 км
- Этажность
- 3
44364
- Лучшая цена
39 000 000 ₽
В продажу представлен просторный таунхаус
в живописном Адлерском районе! Предлагаем ощутить все достоинства данного предложения в живую. Дом в два э... Подробнее
- Площадь
- 122 м² / 4 сот.
- До моря
- 1 км
- Этажность
- 2
49055
39 000 000 ₽
Предлагается к продаже трехэтажный таунхаус
расположенный в КП с закрытой территорией и собственным зеленым парком. Таунхаус с новым ремонтом, полно... Подробнее
- Площадь
- 140 м² / 2 сот.
- До моря
- 2 км
- Этажность
- 3
12315
40 000 000 ₽
Вы всегда мечтали о собственном таунхаусе
на берегу лазурного моря? ООО «Винсент Недвижимость» поможет Вам осуществить Вашу мечту! Мы рады представи... Подробнее
- Площадь
- 230 м² / 3 сот.
- До моря
- 1,1 км
- Этажность
- 3
Таунхаус в Изумрудном Городе: варианты приобретения
-
- Резидент РФ
- Купля
- по долям
- Дом
- Ипотека
Купить дом по долям в ипотеку
-
Документы по требованию Банка (исходя из условий кредитной линии)
-
Нотариальные согласия супругов покупателей на покупку и залог недвижимого имущества в пользу Банка
-
Паспорта обоих покупателей
-
- Резидент РФ
- Купля
- по долям
- Дом
- Наличный расчет
Купить дом по долям
-
Паспорта обоих покупателей
-
- Резидент РФ
- Купля
- Дом
- Ипотека
Купить дом в ипотеку
-
Документы по требованию Банка (исходя из условий кредитной линии)
-
Нотариальное согласие супруга на покупку и залог недвижимого имущества в пользу Банка
-
Паспорт
-
- Резидент РФ
- Купля
- Дом
- Наличный расчет
Купить дом
-
Паспорт
-
- Иностранец
- Купля
- Дом
- Наличный расчет
Купить дом не резиденту РФ
Покупка дома возможна, если участок находится в аренде-
Паспорт национальный и нотариально заверенный перевод национального паспорта
-
- Иностранец
- Купля
- по долям
- Дом
- Наличный расчет
Купить дом по долям не резиденту РФ
-
Паспорт национальный и нотариально заверенный перевод национального паспорта от каждого покупателя